Derzeit in der Leistungsphase 5:
Bamberger Verlagsgruppe
Neubau eines Redaktionsgebäudes
Laubanger 9, Bamberg
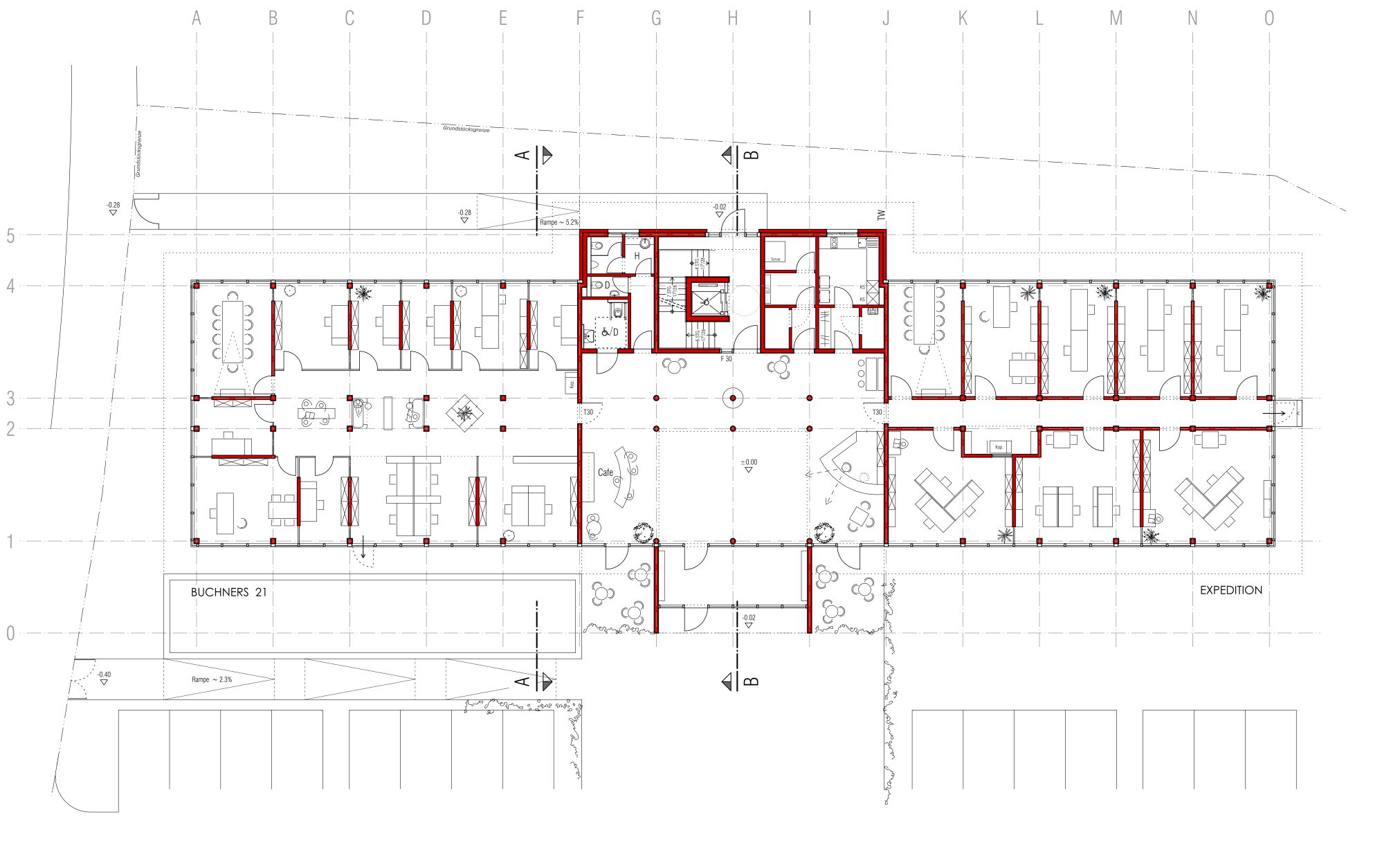
Grundrisse variabel organisierbar vom Einzelbüro bis zur Arbeits- ‚Landschaft‘ für gut 100 Mitarbeiter der BVG Firmengruppe. Photovoltaik - Elemente auf den begrünten Flachdächern und als Sonnenschutz – Elemente an Ost- Süd- und Westfassade.

BVG Neubau Redaktionsgebäude Ansicht Süd

BVG Neubau Redaktionsgebäude Grundriss EG

BVG Neubau Redaktionsgebäude 3D von Norden
